Negozio in via Bissuola

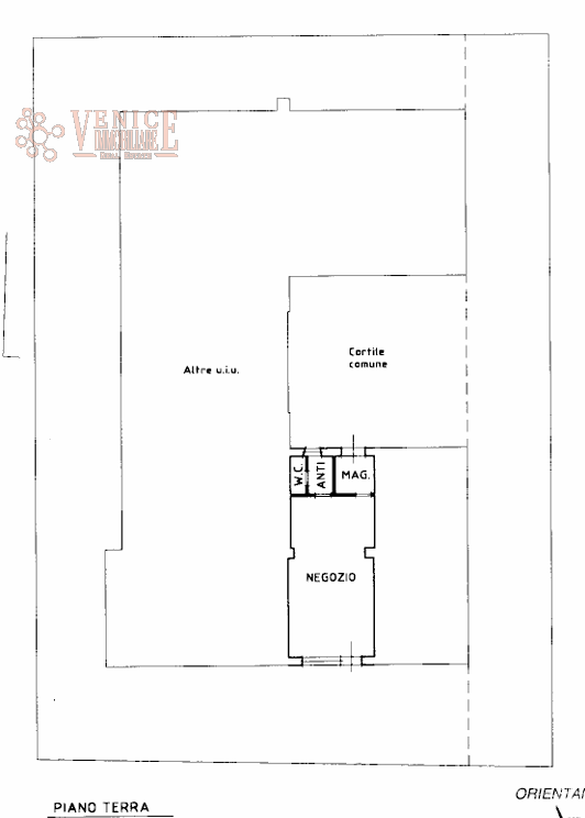
vendita un negozio di 40 mq perfettamente restaurato. Questo locale commerciale presenta una vetrina blindata fronte strada che garantisce sicurezza e visibilità, ideale per attrarre clienti. Il negozio è dotato di un magazzino con antibagno e bagno, rendendolo funzionale per diverse attività commerciali. Inoltre, c'è la possibilità di acquisire due garage/magazzini separati che sono stati precedentemente utilizzati come spazi aggiuntivi. L'immobile si presenta completamente ridipinto e pulito, conforme alle normative vigenti; non ci sono spese condominiali da sostenere. È predisposto per la climatizzazione, assicurando comfort sia ai proprietari che ai clienti durante tutto l'anno. La posizione strategica del negozio lo colloca vicino ad altre attività commerciali come bar, tabacchi e pescheria oltre alla vicinanza a scuole superiori ed una fermata dell’autobus proprio davanti al locale. Questa zona vivace offre un flusso costante di potenziali clienti. Non perdere questa opportunità unica! Contatta VENICE IMMOBILIARE esclusivamente MASSIMO al numero 351 200 1297 per ulteriori informazioni o per organizzare una visita. Certificazione APE G -
Rif. FC170.

54.000 € 
Riferimento
FC170
Mq
40
Camere
1
Bagni
1
Spese condominiali
0 €
Tipologia
Negozio
Contratto
vendita
Comune
Venezia
Zona
Mestre

Informazioni Extra

Ambienti
Ripostigli 1
Livelli & comfort
Livelli Piano terra
Predisposizione aria condizionata
Accesso disabili
Animali ammessi
Ingresso indipendente
Numero portoni 1
Porta blindata
Tende da sole

contattaci.

54.000 € 
Riferimento
FC170
Mq
40
Camere
1
Bagni
1
Spese condominiali
0 €
Tipologia
Negozio
Contratto
vendita
Comune
Venezia
Zona
Mestre

 

3
3
G
0.00
n/d